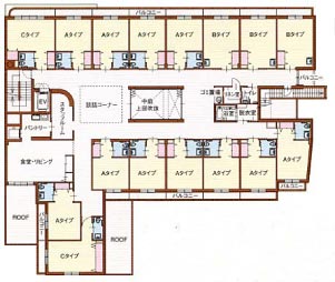
主な設備

居室
竹フローリング、クローゼット、床暖房、ナースコール、
照明器具、カーテン、洗面台、換気扇、トイレ(一部除く)

共用
エレベーター、浴場、個別浴室、ユニットバス、
トイレ(洗浄便座付)、食堂・リビングスペース、
談話コーナー、相談室、洗濯室、駐車場、他

概要

名  称 介護付有料老人ホーム ぬくもりの里 悠楽苑
所 在 地 札幌市清田区美しが丘5条9丁目9番20号
室  数 1人用26室 2人用4室
建築面積 695㎡
延床面積 1.860㎡
構  造 鉄筋コンクリート造、地上3階建て
居室面積 Aタイプ:1人部屋、10畳・トイレ、洗面台及び
       クローゼット付
Bタイプ:1人部屋、12畳・洗面台及びクローゼット付
Cタイプ:2人部屋、13畳・トイレ、洗面台及び
       クローゼット付
開 設 日 平成18年3月


ご利用料金表

■入居金 70万円(二人部屋は、一室につき80万円)
入居時に70%償却し、残金を5年間で償却いたします。

■保証金(敷金) 家賃2か月分(8万円〜13万4千円)

■月額利用料

お部屋タイプ Aタイプ
一人用
Bタイプ
一人用
Cタイプ
二人用
広さ 10畳 12畳 13畳
家賃 55,000円 40,000円 67,000円
管理費 51,000円 51,000円 54,000円
食事(3食) 54,900円 54,900円 109,800円
合計 160,900円 145,900円 230,800円

※食事は30日計算です。3日前までのキャンセル分は差し引きします。

※冬期間(10〜4月)は空調施設利用料としてA・Bタイプ月額14,500円、Cタイプ月額16,500増しとなります。
※管理費は居室で使用する水道、電気の使用量、共用施設等の維持管理、及び事務管理等に係る費用となります。


2F


画像をクリックすると拡大して見ることができます。


3F


画像をクリックすると拡大して見ることができます。


悠楽苑にご入居いただける方
●おおむね60歳以上で要介護、要支援認定を受けた方。
●共同生活に支障のない方、体験入居や短期間のご利用についてもご相談ください。
Copyright © UNICARE Co.,Ltd. All Rights Reserved.